

















INFORMAZIONI
HOTEL D. H. LAWRENCE
Un ambizioso progetto di riqualificazione di un edificio storico nel cuore del quartiere Castello a Cagliari. Il concept integra armoniosamente la preservazione delle testimonianze ipogee emerse durante gli scavi con una nuova destinazione ricettiva di lusso, offrendo dieci suite, spazi wellness e servizi esclusivi in un contesto di grande valore architettonico e culturale.
LOCALIZZAZIONE E STATO INIZIALE
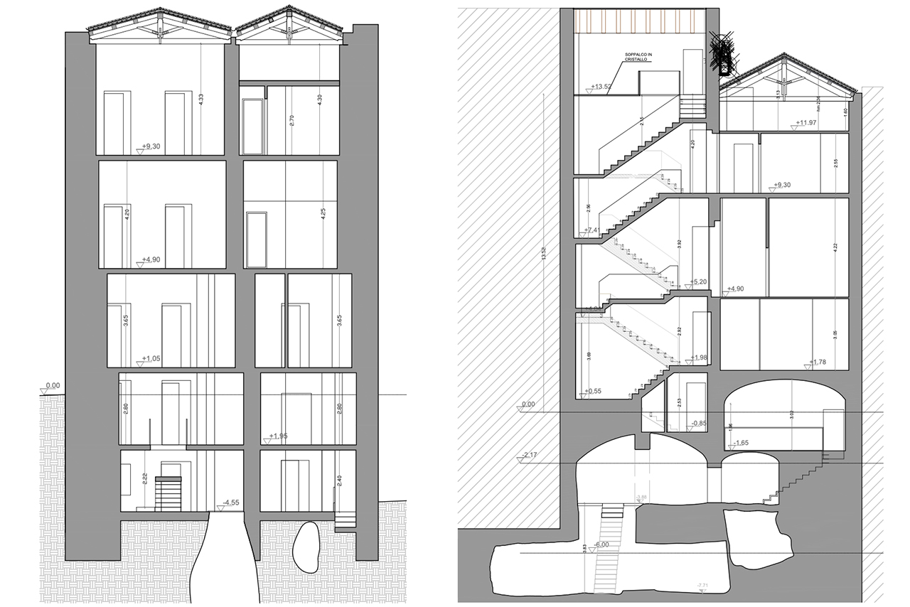
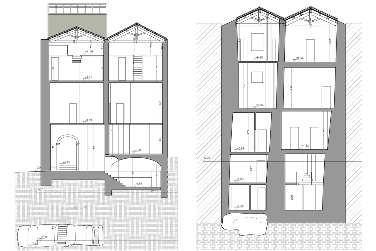
L’immobile oggetto dell’intervento si trova nel cuore del quartiere storico di Castello, a Cagliari, e comprende gli edifici affacciati su via La Marmora 98 e via Dei Genovesi 85-87-89. Il complesso si sviluppa su cinque livelli fuori terra, oltre a un articolato sistema di ambienti interrati, in parte riemersi durante i lavori di scavo. Alla fase iniziale del progetto, l’edificio si presentava in stato di avanzato degrado strutturale e funzionale: i solai erano fortemente compromessi, con elementi lignei deteriorati e controsoffitti in pessime condizioni; le coperture mostravano cedimenti e infiltrazioni; gli impianti risultavano obsoleti o completamente assenti; la distribuzione interna era frammentata e inadeguata alle esigenze di una struttura moderna. Le murature portanti, in pietra, presentavano quadri fessurativi diffusi e necessitavano di importanti interventi di consolidamento. L’accessibilità generale era limitata e non conforme agli standard attuali.




DESTINAZIONE D’USO E LINEE GUIDA PROGETTUALI
Il progetto ha come obiettivo la riqualificazione del complesso edilizio e la sua trasformazione in una struttura ricettiva di alto livello, articolata in dieci suite, una zona wellness, un’area fitness, una sala per la somministrazione di cibi e bevande e locali tecnici e di servizio. Le linee guida progettuali si fondano sul principio della conservazione integrata: si è scelto di valorizzare le preesistenze storiche e tipologiche, minimizzando le demolizioni e privilegiando interventi reversibili e compatibili con la natura storica dell’immobile. La nuova funzione ricettiva è stata distribuita in modo da ottimizzare la fruibilità degli spazi e garantire l’accessibilità completa anche per persone con disabilità.
RISCOPERTA E VALORIZZAZIONE DEI LOCALI INTERRATI
Durante i lavori di scavo e pulizia, sono emerse strutture ipogee di notevole rilevanza storica e architettonica. Sotto via La Marmora sono stati ritrovati due livelli interrati: il primo, coerente con il sedime del fabbricato, di origine sette/ottocentesca; il secondo, più profondo e interamente scavato nella roccia, di probabile epoca romana, caratterizzato da forma irregolare e struttura a cavità. Sotto via Dei Genovesi sono emerse due grandi cisterne dalla forma a bulbo, profonde oltre tre metri, e una cantina con accesso tramite scala scavata nella pietra. Il progetto ha previsto l’integrazione di questi ambienti nel percorso dell’edificio, rendendoli visitabili mediante l’installazione di scale in acciaio indipendenti dalle murature e camminamenti trasparenti e amovibili. Gli impianti sono stati disposti a vista, con canalizzazioni collocate sotto pedane, per preservare completamente le strutture originarie.








RIORGANIZZAZIONE FUNZIONALE DEGLI SPAZI
La riorganizzazione funzionale ha riguardato tutti i livelli dell’edificio. Al piano terra e primo di via Dei Genovesi trovano posto la cucina, la sala per la somministrazione e un’area fitness. L’illuminazione e la ventilazione naturale sono state potenziate mediante l’arretramento del solaio del primo impalcato, soluzione compatibile con le prescrizioni per gli edifici in classe di valore IIA del PPCS. I piani superiori ospitano le suite, tutte dotate di bagno privato. Le suite O e N, situate all’ultimo piano di via La Marmora, sono state arricchite da soppalchi, progettati nel rispetto dei limiti normativi (superficie inferiore al 40% della superficie sottostante, altezze minime e medie conformi, adeguata aerazione e illuminazione naturale). L’accessibilità verticale è garantita da un ascensore panoramico in cristallo, posizionato in una zona indipendente rispetto al sistema distributivo esistente, con struttura in acciaio autoportante.
INTERVENTI STRUTTURALI E IMPIANTISTICI
Gli interventi strutturali sono stati mirati alla messa in sicurezza dell’edificio e al recupero della sua funzionalità. Le murature lesionate sono state consolidate mediante travi in acciaio con funzione di cerchiatura; la scala è stata rafforzata da una struttura metallica integrata e protetta da un rivestimento in cristallo, che garantisce l’illuminazione naturale e contribuisce all’estetica complessiva. Il nuovo impianto di sollevamento collega tutti i livelli fino al primo interrato. Gli impianti tecnologici sono stati concepiti con un approccio integrato e sostenibile: l’edificio è dotato di un sistema aria/acqua con sei pompe di calore a basso impatto visivo, perfettamente integrate nella muratura esistente e gestite da un impianto domotico avanzato. Tutti gli impianti sono stati installati nel rispetto delle preesistenze architettoniche e in modo completamente reversibile nei locali ipogei.
RECUPERO ARCHITETTONICO ED EFFICIENTAMENTO ENERGETICO
Il restauro delle facciate ha seguito criteri conservativi, impiegando materiali compatibili e finiture coerenti con l’immagine storica dell’edificio. È stato ripristinato l’infisso storico sul fronte di via Dei Genovesi, creando un ulteriore accesso al piano terra e migliorando la simmetria prospettica. Le pompe di calore esterne sono state trattate con una finitura dello stesso colore del prospetto per minimizzarne l’impatto visivo. L’intervento ha perseguito la piena valorizzazione del bene architettonico, unita alla riqualificazione energetica e all’adeguamento funzionale, trasformando il complesso in una struttura ricettiva moderna, efficiente e rispettosa del contesto storico in cui si inserisce.





















